Jedná se o klíčové rozhodnutí a projekty s investicemi v řádu stovek milionů korun, které ovlivní rozvoj města na několik desítek let dopředu.
„Naše město vlastní několik budov, u kterých nyní zvažujeme jejich nejlepší a nejefektivnější využití. Vzhledem k tomu, že jakákoli varianta bude velmi finančně nákladná a závazná na dlouhou dobu, chceme, aby měli naši občané možnost se k tomuto rozhodnutí vyjádřit. Jde o důležité kroky, na kterých by se měli podílet všichni,“ uvedl starosta města František Koudela.
PRVNÍ OTÁZKA REFERENDA ŘEŠÍ BUDOUCNOST BÝVALÉ HASIČSKÉ ZBROJNICE NA ULICI PRAŽSKÁ
Občané rozhodnou, zda zde vznikne nový centralizovaný městský úřad. Úřad by byl bezbariérový, moderní, s dostatkem parkovacích míst. Občané by zde vyřídili všechny úkony v přenesené působnosti, od občanských průkazů až po stavební řízení. Odbory a oddělení samosprávy (majetek, investice, …), matriční úřad a vedení města by ovšem zůstaly na Obrokové ulici. „Nikdy se totiž nepočítalo s tím, že by vedení opustilo budovu současné radnice. Problematické jsou zde vysoké náklady v řádech stovek milionů korun, které by zatížily městský rozpočet a omezily další investice, protože aktuálně nejsou dostupné vhodné dotační tituly,“ vysvětluje místostarosta Jiří Kacetl. Celkové náklady na realizaci se odhaduji na 355 milionů korun (bez DPH).
Pokud občané vyjádří nesouhlas s výstavbou centrálního úřadu, avizovalo vedení města zvážení jiného využití prostor. Jednou z možností by mohlo být vybudování městských bytů, na jejichž realizaci lze získat finanční podporu z dotačních programů. Jednalo by se o tzv. startovací byty, které ve Znojmě chybí. Jsou ideální volbou pro mladé lidi, kteří začínají samostatný život, nebo pro ty, kteří hledají cenově dostupné řešení při budování své kariéry. Výhodou těchto bytů je nižší nájemné, kdy si mohou lidé ušetřené peníze spořit na zajištění vlastního bydlení v budoucnosti. Tohle je pouze jedno z možných řešení, pokud by zde lidé neodhlasovali úřad. V tomto případě proběhnou další projednání a budeme se ptát dále, co by tu občané chtěli, když ne úřad. Taková rozhodnutí chceme dělat společně s občany.
DRUHÁ ČÁST REFERENDA SE ZAMĚŘÍ NA BÝVALÉ MĚSTSKÉ LÁZNĚ NA NÁMĚSTÍ SVOBODY
Občané budou vybírat z pěti navržených variant jejich využití. „Cílem je najít ideální způsob, jak tento prostor co nejlépe využít. Věřím, že referendum ukáže, co nejlépe odpovídá potřebám našeho města a nasměruje budoucnost lázní správným směrem. Rozhodnutí je na občanech,“ říká místostarostka Bohumila Beranová.
Bazén s wellness prvky
Jednou z variant je obnova bazénu s moderním wellness centrem prostřednictvím spolupráce veřejného a soukromého sektoru (PPP). Soukromý investor by financoval rekonstrukci, provozoval zařízení a sdílel rizika, město by na druhou stranu nemělo plnou kontrolu nad cenou vstupného. „PPP spolupráce je efektivní model. Už jsme jej úspěšně využili například při revitalizaci pivovarského areálu, kde vznikl projekt Enotéky a městského pivovaru,“ říká místostarosta Jakub Malačka. Návrh počítá s 8dráhovým bazénem, wellness, brouzdalištěm, relaxační zónou a tribunou. Rozšířila by se také parkovací kapacita a přibyly by veřejné toalety. Odhadované náklady dosahují 340 milionů korun (bez DPH). Finální podobu a vybavení by ale určil až vybraný soukromý investor.
Městská knihovna s komunitním centrem
Další variantou je proměna lázní v kulturně-vzdělávací centrum. Plány zahrnují nejen klasické knihovnické služby, ale i inovace jako bibliobox, digitální laboratoře, coworking, relaxační zóny či sousedské dílny. Prostory budou sloužit workshopům, přednáškám nebo besedám, a to i mimo běžnou otevírací dobu. Zůstala by zachována ikonická bazénová hala, která by se stala jedinečnou knihovnou s kavárnou, studovnami, dětskou hernou a komunitními prostory. Venkovní areál by nabídl terasu, letní čítárnu, komunitní zahrádku či dětské hřiště. Náklady projektu jsou odhadovány na 214 milionů korun (bez DPH).
Městská tržnice s regionálními produkty
Tento návrh počítá se vznikem celoroční tržnice pro farmáře a řemeslníky. Součástí projektu je kavárna, coworking, herna, sousedské dílny a veřejné toalety. Venkovní část by nabídla odpočinkové zóny, dětská hřiště s trampolínami, skluzavkami a vodními prvky, workoutové hřiště, ping-pongové stoly, piknikové prostory, grily a komunitní zahrádku. Realizace vyžaduje změnu územního plánu, což by trvalo zhruba rok, a náklady se odhadují na 180 milionů korun (bez DPH).
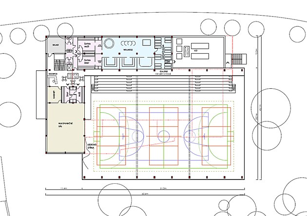
Sportovní hala
Přeměna lázní na sportovní halu reflektuje potřebu rozšíření sportovních možností ve městě. Projekt zahrnuje hrací plochu 22 x 44 m, tribunu pro 560 diváků, šatny, fitness, taneční sál, tělocvičnu, lezeckou stěnu, multifunkční prostory a wellness. Rozšířili by se sportovní kapacity nedaleké sportovní haly na ulici F. J. Currie, která je velmi vytížená. Navíc dvě haly v těsné blízkosti otevírají možnost pořádání větších republikových turnajů napříč různými sportovními disciplínami. Náklady na realizaci se pohybují kolem 285 milionů korun (bez DPH).
Volnočasové zábavní centrum
Poslední varianta nabízí přeměnu lázní na centrum zábavy pro všechny generace. Znojmáci již dlouho postrádají místo, kde by mohli strávit volný čas. Chybí tu prostor, kam by se rodiče mohli uchýlit se svými dětmi, zvláště když počasí nepřeje venkovním aktivitám. Podobné zařízení by dokázalo vyhovět potřebám rodin, mladých lidí i seniorů. Projekt nabídne jump park, obří skluzavky a tobogán, herny pro děti, salonky pro dětské oslavy, restauraci s letní terasou i relaxační zóny. Venkovní část zahrne vodní atrakce, motokárovou dráhu nebo piknikovou zónu. Náklady na projekt dosahují 186 milionů korun (bez DPH).
JAK VOLIT?
KDY: 29. března 2025 v čase 8:00 – 21:00.
KDE: hlasovací okrsky, které jsou shodné s volebními okrsky – jednoduše řečeno – hlasovat půjdete tam, kam obvykle chodíte volit k volbám. Seznam hlasovacích místností k nahlédnutí ZDE.
HLASOVACÍ LÍSTKY: nepřijdou poštou, ale budou k dispozici až na místě v hlasovací místnosti.
ODPOVĚDI: Svou volbu označí hlasující křížkem v příslušném rámečku u odpovědi „ANO“ nebo „NE“, nebo se mohou zdržet hlasování tím, že neoznačí žádnou odpověď.
Zatímco v otázce hasičské zbrojnice budou občané odpovídat „ANO“ či „NE“, pouze v jedné otázce, v případě lázní budou mít možnost vybírat hned z pěti variant. Každá z nich byla pečlivě připravena s ohledem na potřeby města a jeho občanů. Každá z nich reflektuje různé pohledy na to, jak by mohly být bývalé Městské lázně využity v budoucnu. Aby však toto hlasování mohlo být co nejprůkaznější a abychom mohli správně určit, která varianta má největší podporu, PROSÍME VÁS, abyste dali své „ANO“ pouze jedné možnosti. I když zákon umožňuje označit více variant, věříme, že zvolíte tu jednu, kterou považujete za nejvhodnější.
Kdo může hlasovat?
Hlasovat mohou občané ČR s trvalým pobytem ve Znojmě, kteří do dne hlasování dosáhnou 18 let a nemají zákonnou překážku hlasovat. Účastnit se mohou i občané EU s přechodným nebo trvalým pobytem ve Znojmě, pokud se zaregistrují do dodatku seznamu voličů na Městském úřadě Znojmo (Pražská 59) do 27. března 2025 v 16:00. Registrace není nutná, pokud byli zapsáni při minulých obecních volbách.
Referendum je platné, pokud hlasuje alespoň 35 % oprávněných osob, a závazné, pokud pro rozhodnutí hlasuje nadpoloviční většina účastníků a zároveň 25 % všech oprávněných voličů. Avšak vedení města Znojma deklarovalo, že i pokud nebudou splněny tyto podmínky, budou brát výsledek referenda jako závazný.
Přesné znění jednotlivých otázek, podrobné informace o pravidlech referenda, průběhu hlasování i jednotlivých variantách, včetně vizualizací, najdete na webových stránkách www.znojmorozhoduje.cz. Sledovat můžete také facebookovou událost. Na Horním náměstí ve Znojmě najedete panelovou výstavu, kde je vše přehledně vysvětleno. Naplánovány jsou také veřejné prezentace a komentované prohlídky obou objektů. Termíny všech akcí najdete ZDE.
PŘIJĎTE ROZHODNOUT!























